Wohnpark "Am Barbarasee"

Attraktive Baugrundstücke in unserer Kleinstadt-Metropole

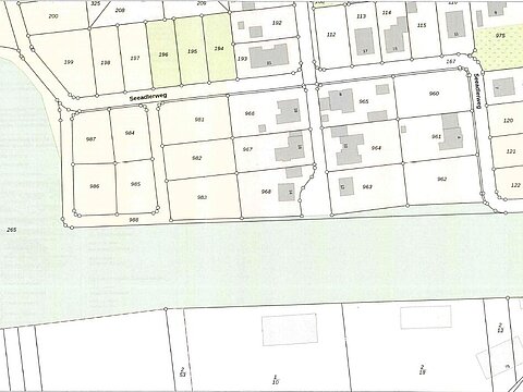
Mitten in der wunderschönen Seenlandschaft, im „Wohnpark am Barbarasee“ im neu erschlossenen Baugebiet „Seeadlerweg“ bietet die Stadt Gräfenhainichen insgesamt 13 Baugrundstücke für Wohnbebauung oder nicht störendes Gewerbe in einer ruhigen und familienfreundlichen Wohngegend zum Verkauf an. Einkaufsmöglichkeiten, Schulen, Kindergärten und öffentliche Verkehrsmittel sind fußläufig erreichbar und machen das Wohnen hier besonders attraktiv für Familien und Berufstätige. Alle Baugrundstücke verfügen über Glasfaseranschlüsse und machen somit ein Arbeiten von zu Hause aus möglich.

Unterschiedliche Bebaubarkeit, vom Bungalow bis zur Stadtvilla, lassen kaum Wünsche offen. Die Bestimmungen aus dem vorliegenden Bebauungsplan können auf Anfrage unter der Telefonnummer 034953 35774 oder per Mail an stadtplanung@graefenhainichen.de abgefordert werden. Der Preis für den vollerschlossenen Grund und Boden beträgt 89,74 Euro je Quadratmeter.
Wer sein Traumgrundstück noch sucht, ist hier an der richtigen Adresse. Melden Sie sich schnellstmöglich bei der Stadt Gräfenhainichen, im Bereich Liegenschaften unter der Telefonnummer 034953 35773 oder schicken eine Mail an Liegenschaften@graefenhainichen.de.
 

Kontakt

  • Stadt Gräfenhainichen
    Zimmer 20
    Markt 1
    06773 Gräfenhainichen

Telefon

  • 034953 35773

E-Mail

Ansprechpartner/-in

  • Frau Kliemann

Sprechzeiten

  • Montag: 
    09:00 - 12:00 Uhr

    Dienstag: 
    09:00 - 12:00 Uhr
    13:00 - 16:00 Uhr

    Mittwoch:
    09:00 - 12:00 Uhr

    Donnerstag: 
    09:00 - 12:00 Uhr
    13:00 - 18:00 Uhr

    Freitag:
    09:00 - 11:30 Uhr